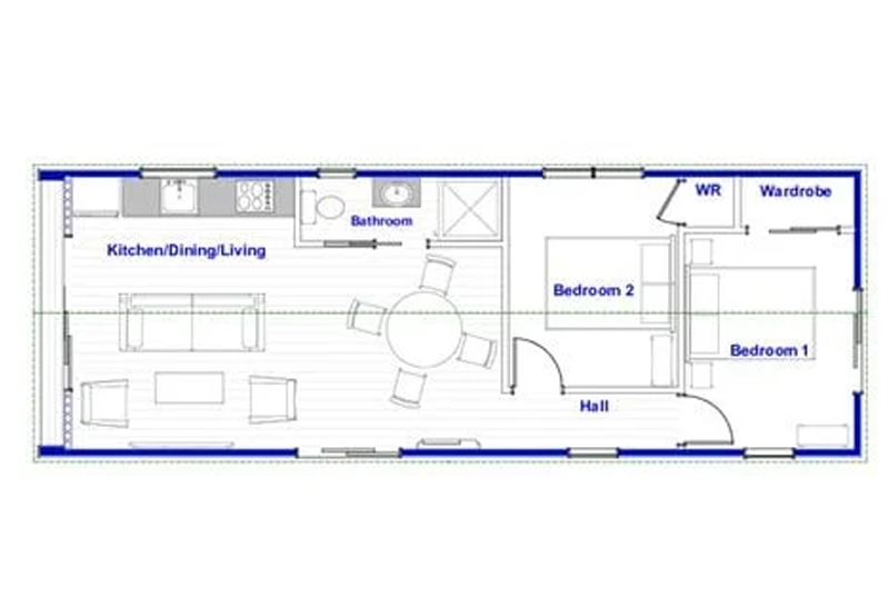
CABIN 2 BEDROOM

$POA

This 2-bedroom cozy cabin is perfect for a small family or a couple looking for a peaceful retreat. The cabins compact size makes it easy to maintain and keep clean, while the two bedrooms offers enough space for privacy and relaxation. The bathroom is modern and functional and will be sure to make you feel right at

- Compact Design, suitable for granny flats or secondary dwelling.
- Grid Connect smart switches & power points.
- Stylish kitchen range to choose from.
- Heat Pump / Air Conditioner Included.
- Thermally Broken Double Glazed Joinery.